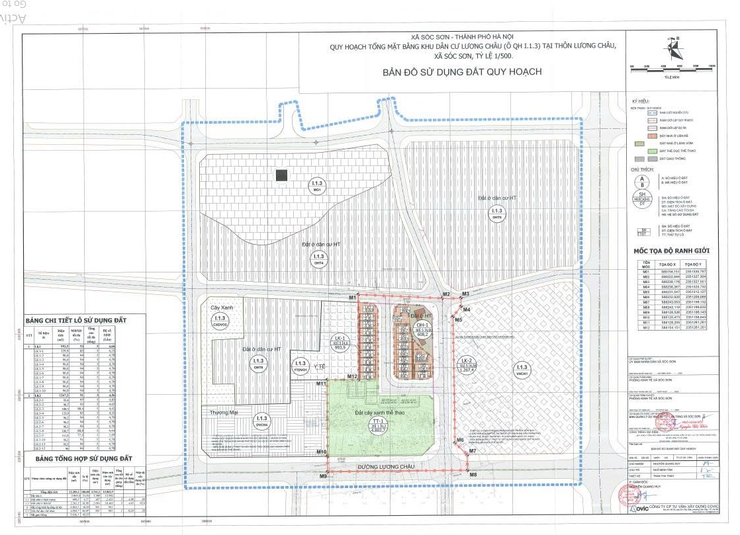
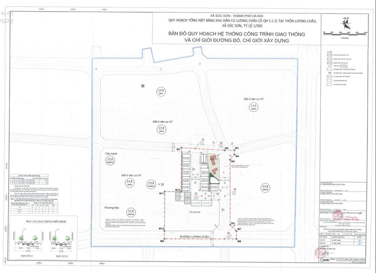
Thông báo lấy ý kiến Quy hoạch tổng mặt bằng dự án: Xây dựng hạ tầng kỹ thuật và chỉnh trang khu dân cư thôn Lương Châu (thuộc ô đât OQH1, ô quy hoạch I.1.3)

3 giờ trước

Ban quản lý dự án đầu tư - hạ tầng xã Sóc Sơn ban hành Thông báo số 31/TB-QLDA ngày 10/4/2026 về việc lấy ý kiến Quy hoạch tổng mặt bằng dự án: Xây dựng hạ tầng kỹ thuật và chỉnh trang khu dân cư thôn Lương Châu (thuộc ô đât OQH1, ô qy hoạch I.1.3).

Tin đọc nhiều

DANH SÁCH CÁC SẢN PHẨM OCOP ĐÃ ĐƯỢC CHỨNG NHẬN TRÊN ĐỊA BÀN XÃ SÓC SƠN

3 giờ trước

Nhằm tăng cường công tác tuyên truyền, nâng cao nhận thức, trách nhiệm của các chủ thể OCOP về đảm bảo an toàn thực phẩm, chất lượng sản phẩm gắn với vùng nguyên liệu địa phương, góp phần nâng cao chất lượng các sản phẩm OCOP được cấp có thẩm quyền chứng nhận, UBND xã Sóc Sơn công khai danh mục các chủ thể và sản phẩm OCOP đã được cấp có thẩm quyền chứng nhận đạt 3 sao trở lên trên địa bàn xã.

Công khai kết quả kiểm tra hồ sơ đăng ký đất đai, tài sản gắn liền với đất, cấp Giấy chứng nhận quyền sử dụng đất của Ông Lê Văn Nuôi và Bà Nguyễn Thị Giang

4 giờ trước

UBND xã Sóc Sơn nhận được Hồ sơ đăng ký đất đai, tài sản gắn liền với đất, cấp Giấy chứng nhận quyền sử dụng đất của ông Lê Văn Nuôi và bà Nguyễn Thị Giang đối với thửa đất số 83, tờ bản đồ số 10, diện tích 511,6m2 tại thôn Phú Thọ, xã Sóc Sơn, thành phố Hà Nội.

HĐND XÃ SÓC SƠN TỔ CHỨC KỲ HỌP THỨ HAI (KỲ HỌP CHUYÊN ĐỀ), KIỆN TOÀN CHỨC DANH PHÓ CHỦ TỊCH UBND XÃ

4 giờ trước

Chiều 9/4/2026, HĐND xã Sóc Sơn khóa II, nhiệm kỳ 2026–2031 tổ chức Kỳ họp thứ hai (kỳ họp chuyên đề) để xem xét, quyết định một số nội dung quan trọng thuộc thẩm quyền.

TUYÊN TRUYỀN CÔNG TÁC XÂY DỰNG DỰ ÁN LUẬT THỦ ĐÔ (SỬA ĐỔI)

4 giờ trước

Dự án Luật Thủ đô (sửa đổi) hiện đã được Chính phủ trình Quốc hội (Tờ trình số 128/TTr-CP ngày 28/3/2026). Dự án Luật Thủ đô (sửa đổi) sẽ được Quốc hội khoá XVI xem xét, thông qua tại Kỳ họp thứ nhất tháng 4/2026. Dự kiến Luật Thủ đô (sửa đổi) được Quốc hội thông qua sẽ có hiệu lực từ ngày 01/7/2026, riêng quy định về thẩm quyền của Hội đồng nhân dân Thành phố Hà Nội quy định trình tự, thủ tục theo quy định của pháp luật về ban hành văn bản quy phạm pháp luật và trình tự, thủ tục ban hành nghị quyết quy phạm pháp luật để quyết định lựa chọn áp dụng pháp luật để triển khai thi hành Luật Thủ đô có hiệu lực từ ngày 01/6/2026.

Tin cùng chuyên mục
Xem theo ngày
Xem
DANH SÁCH CÁC SẢN PHẨM OCOP ĐÃ ĐƯỢC CHỨNG NHẬN TRÊN ĐỊA BÀN XÃ SÓC SƠN
DANH SÁCH CÁC SẢN PHẨM OCOP ĐÃ ĐƯỢC CHỨNG NHẬN TRÊN ĐỊA BÀN XÃ SÓC SƠN
Nhằm tăng cường công tác tuyên truyền, nâng cao nhận thức, trách nhiệm của các chủ thể OCOP về đảm bảo an toàn thực phẩm, chất lượng sản phẩm gắn với vùng nguyên liệu địa phương, góp phần nâng cao chất lượng các sản phẩm OCOP được cấp có thẩm quyền chứng nhận, UBND xã Sóc Sơn công khai danh mục các chủ thể và sản phẩm OCOP đã được cấp có thẩm quyền chứng nhận đạt 3 sao trở lên trên địa bàn xã.
3 giờ trước
Công khai kết quả kiểm tra hồ sơ đăng ký đất đai, tài sản gắn liền với đất, cấp Giấy chứng nhận quyền sử dụng đất của Ông Lê Văn Nuôi và Bà Nguyễn Thị Giang
Công khai kết quả kiểm tra hồ sơ đăng ký đất đai, tài sản gắn liền với đất, cấp Giấy chứng nhận quyền sử dụng đất của Ông Lê Văn Nuôi và Bà Nguyễn Thị Giang
UBND xã Sóc Sơn nhận được Hồ sơ đăng ký đất đai, tài sản gắn liền với đất, cấp Giấy chứng nhận quyền sử dụng đất của ông Lê Văn Nuôi và bà Nguyễn Thị Giang đối với thửa đất số 83, tờ bản đồ số 10, diện tích 511,6m2 tại thôn Phú Thọ, xã Sóc Sơn, thành phố Hà Nội.
4 giờ trước
Niêm yếu trưng bày và xin ý kiến cộng đồng dân cư về phương án, vị trí tuyến đường tỷ lệ 1/500 thuộc dự án Quốc lộ 3 - trường đua ngựa - Đức Hoà (đường biên phía Đông KĐT vệ tinh Sóc Sơn)
Niêm yếu trưng bày và xin ý kiến cộng đồng dân cư về phương án, vị trí tuyến đường tỷ lệ 1/500 thuộc dự án Quốc lộ 3 - trường đua ngựa - Đức Hoà (đường biên phía Đông KĐT vệ tinh Sóc Sơn)
Bạn quản lý dự án đầu tư - hạ tầng xã Sóc Sơn ban hành Thông báo số 22/TB-QLDA ngày 27/3/2026 về niêm yếu trưng bày và xin ý kiến cộng đồng dân cư về phương án, vị trí tuyến đường tỷ lệ 1/500 thuộc dự án Quốc lộ 3 - trường đua ngựa - Đức Hoà (đường biên phía Đông KĐT vệ tinh Sóc Sơn)
23:04 01/04/2026
Xã Sóc Sơn tổ chức công khai xin ý kiến về tình trạng đất ở, nhà ở khác ngoài thửa đất thu hồi để thực hiện công tác giải phóng mặt bằng dự án mở rộng quốc lộ 3 theo quy hoạch.
Xã Sóc Sơn tổ chức công khai xin ý kiến về tình trạng đất ở, nhà ở khác ngoài thửa đất thu hồi để thực hiện công tác giải phóng mặt bằng dự án mở rộng quốc lộ 3 theo quy hoạch.
Đoạn nút giao đường 18 đến ngã ba đường vào đền Sóc, huyện Sóc Sơn. Địa phận thôn Miếu Thờ, xã Sóc Sơn, TP Hà Nội.
14:10 26/03/2026
THÔNG BÁO LẤY Ý KIẾN QUY HOẠCH TỔNG MẶT BẰNG DỰ ÁN XÂY DỰNG KHU CÂY XANH, HỒ ĐIỀU HÒA TẠI THÔN DƯỢC THƯỢNG
THÔNG BÁO LẤY Ý KIẾN QUY HOẠCH TỔNG MẶT BẰNG DỰ ÁN XÂY DỰNG KHU CÂY XANH, HỒ ĐIỀU HÒA TẠI THÔN DƯỢC THƯỢNG
Ban quản lý Dự án đầu tư - hạ tầng xã Sóc Sơn ban hành Thông báo số 15/TB-QLDA ngày 11/3/2026 về việc lấy ý kiến quy hoạch tổng mặt bằng dự án Xây dựng khu cây xanh, hồ điều hòa tại thôn Dược Thượng, xã Sóc Sơn, thành phố Hà Nội
10:50 11/03/2026
THÔNG BÁO LẤY Ý KIẾN QUY HOẠCH TỔNG MẶT BẰNG DỰ ÁN XÂY DỰNG KHU CÂY XANH, HỒ ĐIỀU HÒA TẠI THÔN LƯƠNG CHÂU, XÃ SÓC SƠN
THÔNG BÁO LẤY Ý KIẾN QUY HOẠCH TỔNG MẶT BẰNG DỰ ÁN XÂY DỰNG KHU CÂY XANH, HỒ ĐIỀU HÒA TẠI THÔN LƯƠNG CHÂU, XÃ SÓC SƠN
Ban quản lý Dự án đầu tư - hạ tầng xã Sóc Sơn ban hành Thông báo số 13/TB-QLDA ngày 05/3/2026 về việc lấy ý kiến quy hoạch tổng mặt bằng dự án xây dựng khu cây xanh, hồ điều hòa tại thôn Lương Châu, xã Sóc Sơn, thành phố Hà Nội.
10:07 05/03/2026
Tin khác
HĐND XÃ SÓC SƠN TỔ CHỨC KỲ HỌP THỨ HAI (KỲ HỌP CHUYÊN ĐỀ), KIỆN TOÀN CHỨC DANH PHÓ CHỦ TỊCH UBND XÃ
HĐND XÃ SÓC SƠN TỔ CHỨC KỲ HỌP THỨ HAI (KỲ HỌP CHUYÊN ĐỀ), KIỆN TOÀN CHỨC DANH PHÓ CHỦ TỊCH UBND XÃ
Chiều 9/4/2026, HĐND xã Sóc Sơn khóa II, nhiệm kỳ 2026–2031 tổ chức Kỳ họp thứ hai (kỳ họp chuyên đề) để xem xét, quyết định một số nội dung quan trọng thuộc thẩm quyền.
4 giờ trước
TUYÊN TRUYỀN CÔNG TÁC XÂY DỰNG DỰ ÁN LUẬT THỦ ĐÔ (SỬA ĐỔI)
TUYÊN TRUYỀN CÔNG TÁC XÂY DỰNG DỰ ÁN LUẬT THỦ ĐÔ (SỬA ĐỔI)
Dự án Luật Thủ đô (sửa đổi) hiện đã được Chính phủ trình Quốc hội (Tờ trình số 128/TTr-CP ngày 28/3/2026). Dự án Luật Thủ đô (sửa đổi) sẽ được Quốc hội khoá XVI xem xét, thông qua tại Kỳ họp thứ nhất tháng 4/2026. Dự kiến Luật Thủ đô (sửa đổi) được Quốc hội thông qua sẽ có hiệu lực từ ngày 01/7/2026, riêng quy định về thẩm quyền của Hội đồng nhân dân Thành phố Hà Nội quy định trình tự, thủ tục theo quy định của pháp luật về ban hành văn bản quy phạm pháp luật và trình tự, thủ tục ban hành nghị quyết quy phạm pháp luật để quyết định lựa chọn áp dụng pháp luật để triển khai thi hành Luật Thủ đô có hiệu lực từ ngày 01/6/2026.
4 giờ trước
Đẩy mạnh tuyên truyền “NGƯỜI VIỆT NAM ƯU TIÊN DÙNG HÀNG VIỆT NAM” TRÊN ĐỊA BÀN THÀNH PHỐ HÀ NỘI
Đẩy mạnh tuyên truyền “NGƯỜI VIỆT NAM ƯU TIÊN DÙNG HÀNG VIỆT NAM” TRÊN ĐỊA BÀN THÀNH PHỐ HÀ NỘI
Ba tháng đầu năm 2026, kinh tế thế giới và trong nước tiếp tục gặp nhiều khó khăn, thách thức nhưng các ngành, các cấp từ Trung ương đến địa phương đã quyết liệt thực hiện giải pháp trong Chỉ thị, Nghị quyết của Chính phủ về phát triển kinh tế - xã hội nhằm đạt kết quả cao nhất các mục tiêu của kế hoạch sản xuất, kinh doanh.
6 giờ trước
THÔNG BÁO Về việc thu dọn cây cối, hoa màu, vât kiến trúc, công trình, tài sản trên đất để bàn giao mặt bằng diện tích đất công, đất công ích trên địa bàn xã Sóc Sơn, thành phố Hà Nội
THÔNG BÁO Về việc thu dọn cây cối, hoa màu, vât kiến trúc, công trình, tài sản trên đất để bàn giao mặt bằng diện tích đất công, đất công ích trên địa bàn xã Sóc Sơn, thành phố Hà Nội
Ông Trần Văn Khoái Địa chỉ: Thôn Phù Mã, xã Sóc Sơn, thành phố Hà Nội.
6 giờ trước
SÓC SƠN ĐẨY MẠNH TUYÊN TRUYỀN, VẬN ĐỘNG TIỂU THƯƠNG CHỢ PHỦ LỖ KÝ HỢP ĐỒNG KINH DOANH THEO QUY ĐỊNH
SÓC SƠN ĐẨY MẠNH TUYÊN TRUYỀN, VẬN ĐỘNG TIỂU THƯƠNG CHỢ PHỦ LỖ KÝ HỢP ĐỒNG KINH DOANH THEO QUY ĐỊNH
Đảm bảo kỷ cương quản lý, công bằng trong hoạt động kinh doanh và hiệu quả sử dụng tài sản công
15:06 09/04/2026
Xã Sóc Sơn tuyên truyền những thành tựu nổi bật của đất nước trong 5 năm 2021-2025
Xã Sóc Sơn tuyên truyền những thành tựu nổi bật của đất nước trong 5 năm 2021-2025
Đề cương tuyên truyền
15:48 08/04/2026
Xã Sóc Sơn triển khai Cuộc thi và Triển lãm ảnh nghệ thuật cấp Quốc gia “Tự hào một dải biên cương” lần thứ IV.
Xã Sóc Sơn triển khai Cuộc thi và Triển lãm ảnh nghệ thuật cấp Quốc gia “Tự hào một dải biên cương” lần thứ IV.
Cuộc thi và Triển lãm ảnh nghệ thuật cấp quốc gia “Tự hào một dải biên cương” lần thứ IV (Cuộc thi) là một nội dung nhằm triển khai Nghị quyết Đại hội đại biểu toàn quốc lần thứ XIV của Đảng; tiếp tục thực hiện Nghị quyết số 33- NQ/TW ngày 28/9/2018 của Bộ Chính trị về Chiến lược bảo vệ biên giới quốc gia và thực hiện Kế hoạch công tác tuyên truyền biên giới trên đất liền năm 2026.
08:58 08/04/2026
KỶ NIỆM 136 NĂM NGÀY SINH CHỦ TỊCH HỒ CHÍ MINH

(19/5/1890 – 19/5/2026)
KỶ NIỆM 136 NĂM NGÀY SINH CHỦ TỊCH HỒ CHÍ MINH (19/5/1890 – 19/5/2026)
Từ tư tưởng của Người – khơi dậy khát vọng phát triển quê hương Sóc Sơn, lan tỏa việc học và làm theo Bác, xây dựng chính quyền phục vụ, vì Nhân dân
08:42 08/04/2026
CÔNG AN XÃ SÓC SƠN TỔ CHỨC KHAI GIẢNG LỚP HỌC QUẢN LÝ, GIÁO DỤC, BỒI DƯỠNG KỸ NĂNG CHO THANH THIẾU NIÊN TRÊN ĐỊA BÀN XÃ KHOÁ 1 NĂM 2026
CÔNG AN XÃ SÓC SƠN TỔ CHỨC KHAI GIẢNG LỚP HỌC QUẢN LÝ, GIÁO DỤC, BỒI DƯỠNG KỸ NĂNG CHO THANH THIẾU NIÊN TRÊN ĐỊA BÀN XÃ KHOÁ 1 NĂM 2026
Sáng 4/4/2026, Công an xã Sóc Sơn tổ chức khai giảng lớp học quản lý, giáo dục, bồi dưỡng kỹ năng cho thanh thiếu niên trên địa bàn xã khoá I năm 2026.
08:18 07/04/2026
TRUNG TÂM CHÍNH TRỊ XÃ SÓC SƠN PHỐI HỢP VỚI HỘI LHPN XÃ TRUNG GIÃ TỔ CHỨC BỒI DƯỠNG NGHIỆP VỤ CÔNG TÁC HỘI
TRUNG TÂM CHÍNH TRỊ XÃ SÓC SƠN PHỐI HỢP VỚI HỘI LHPN XÃ TRUNG GIÃ TỔ CHỨC BỒI DƯỠNG NGHIỆP VỤ CÔNG TÁC HỘI
Thực hiện Quy chế phối hợp và Kế hoạch đào tạo, bồi dưỡng cán bộ, công chức, viên chức giữa các xã trong khu vực năm 2026. Trong hai ngày 2,3/4/ 2026, tại Hội trường Đảng ủy xã Trung Giã, Trung tâm Chính trị xã Sóc Sơn phối hợp với Hội liên hiệp Phụ nữ xã Trung Giã đã tổ chức Lớp bồi dưỡng, tập huấn nghiệp vụ công tác Hội phụ nữ năm 2026 với nội dung thiết thực, góp phần nâng cao chất lượng hoạt động Hội.
08:09 07/04/2026